
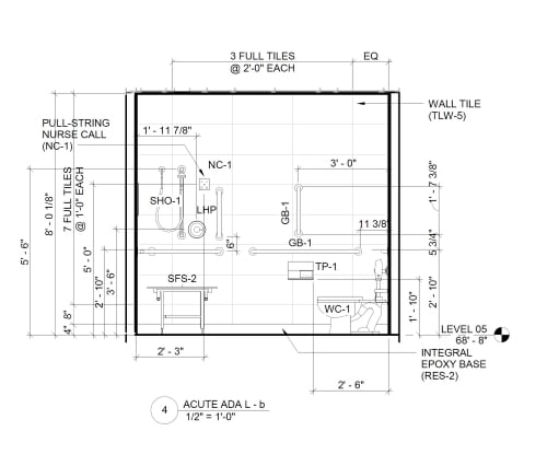
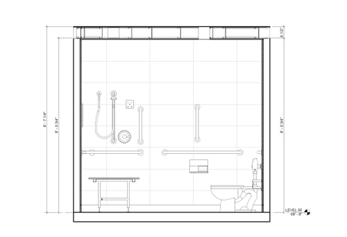
Prefabricating modular bathroom pods in an off-site warehouse or facility significantly decreases material and labor congestion and waste on the jobsite, improves productivity and quality, mitigates schedule complications - resulting in savings, and identifies and resolves design clashes and constructability issues during the design phase, resulting in cost certainty for the product.















